Отличная новость для всех пользователей нашего продукта и технологии:
В октябре 2025 года нашей компанией был получен протокол испытаний на огнестойкость плиты, толщиной 200мм с пустотообразователями Сибформа® СФ100. По данному протоколу плита гарантировано обеспечивает так необходимый многим нашим клиентам предел огнестойкости REI 150 для зданий до 100м высотой (а в некоторых случаях и более – по согласованию с пожарниками, 100…125м).
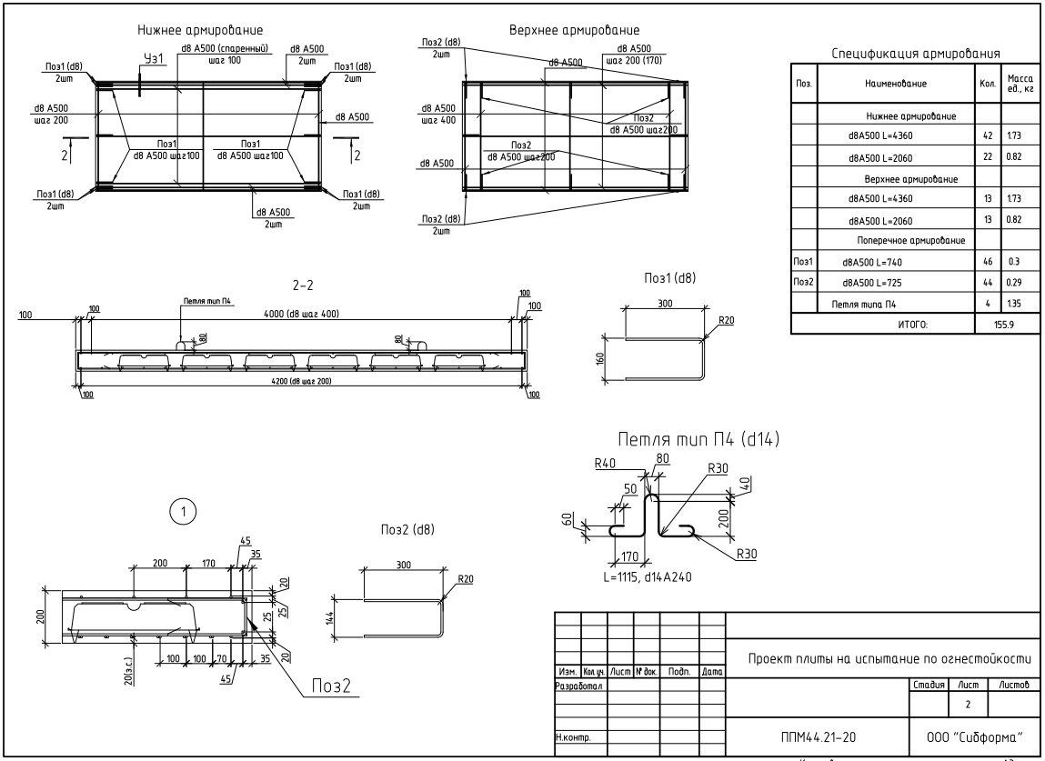
Важно отметить, что испытанная плита обладает отличными технико-экономическими характеристиками. Расход арматуры в испытанной плите, способной выдерживать необходимые нагрузки и держать столь высокий предел огнестойкости, получился небольшой – 98,1 кг/м3 (!), что меньше чем во многих проектах современных зданий. В качестве рабочего армирования использована арматура диаметром 8мм (!) с защитным слоем бетона в 20мм, что также является минимальным для монолитных зданий у большинства Застройщиков.
Теперь наши клиенты могут проектировать с нашей продукцией плиты 200мм для высотных зданий и не переживать за требуемый предел огнестойкости, ведь он будет гарантировано обеспечен, а также получать превосходную экономику по пустотным монолитным плитам перекрытий с технологией Сибформа®.
Для проектировщиков данные натурные испытания и предыдущие в совокупности указывают на то, что пустотные плиты, построенные по технологии Сибформа® держат на 15-40% больше чем расчетный аналог – сплошные плиты, поэтому можно использовать методику расчета по СП 468.1325800.2019, зная что пустотная плита выдержит больше.
Приводим в разделе «загрузка файлов» на нашем официальном сайте сам протокол испытаний.
Ниже привеодим фото изготовления плиты и проект на данную плиту для завода, испытательной лаборатории и пользователей нашей продукции.
Фото готового каркаса плиты с интегрированными в него несъемной опалубкой Сибформа®:

Фото залитой нижней полки (под пустотооразователями):

Фото плиты, залитой полностью:

Фото готовой плиты:


Фото плиты перед испытанием (начальный прогиб плиты под нагрузкой составил 0мм, что говорит о ее высокой прочности и малой деформативности и это при экономном расходовании рабочей арматуры при проектировании!):

Прилагаем также проект плиты, отправленной на испытания:


